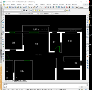
今天是我们实习的第八天🌧️,同往常一样早早的出发到了公司。老板把她画的房型图纸发给我们,让我们cad绘制出来原始结构图。我们刚拿到图纸的时候无从下手,有些看不懂。每个人的画法都不一样,老板大概是时间赶,图上很多尺寸都给省略了。因为我们没有去过现场,没见过结构什么样,也不知道有的细节该怎么画,我们询问老板知道了一些尺寸。老板和我们说有大的尺寸就可以,小的无所谓的。从中感受到绘制一张图纸,要先理解结构,知道各个尺寸,才能清晰地画出cad。![图片[1]-沐泽-艺术1951王敏琪-2023.3.24-现代学徒制-运行管理系统](https://app.art-design.top/wp-content/uploads/2023/03/0559FB1B-2909-4C1F-91E9-FD3A697E08F2-225x300.jpeg)
![图片[3]-沐泽-艺术1951王敏琪-2023.3.24-现代学徒制-运行管理系统](https://app.art-design.top/wp-content/uploads/2023/03/434B5081-4497-4E64-99A1-CC7C43414E3B-300x293.png)
© 版权声明
文章版权归作者所有,未经允许请勿转载。
THE END
喜欢就支持以下吧









