2023年10月的文章
带走-艺术1951蒋子若2023.10.30
今天是在带走公司学习的第十六天,我们把别墅的最终方案的cad做好了之后呢,就开始建模了。我选择用的软件是草图大师,上周把墙体都建好了之后,今天一开始我先把窗户和门都安装好了,有单扇门...
随美——艺术1951金胤佳2023.10.30
今天是学徒制学习的第十六天,天气还行,风也不大。 今天早上在完成家装设计的任务,在设计二楼,从一楼楼梯口上来的的小房间可以做成独立卫生间,基础搭配:洗手台、坐便器、淋浴间。 然后卫...
苏禾装饰—艺术1951应怡蓉2023.10.30
今天是现代学徒制的第十六天,今天学长学姐他们都很忙,有些问题也都没有去问,就继续画CAD吧,把上周修改的4个房间的顶面图,连着后面的几个都改好,接着画立面图,主卧空间很大,一排的衣柜,...
沐泽-艺术1951王敏琪-2023.10.30
今天是我们公司学习的第13天,也是第四周的第一天。我翻阅公司的书籍被一本书的封面所吸引住——《兔宝宝生态板》,处于好奇打开书看,这些板的名字都很有趣少见。了解了一下:关于“生态板产品...
苏禾装饰—艺术1951王天宇 2023.10.30
新的一周又开始了,今天继续做酷家乐,根据我的立面图找了一个相似的入户的鞋贵,就是柜子的颜色不符合,我就把它的材质改了,一开始我把它的材质改成黑的,但是那个材质渲染出来很奇怪,我就不...
名帆装饰 艺术1951 周王雨 2023.10.30
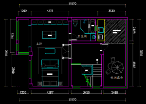
今天一天都在改这个别墅的图,一楼改动的比较大卫生间改小了做成干湿分离把洗衣区去掉了,厨房变大了,考虑了烤箱,把客厅去掉换成了喝茶交谈的地方,把中间那墙也拆除,更加的宽敞,二楼把喝茶...
榫卯装饰-艺术1951李思韵-2023.10.30
今天中午设计师给我们发了一个沙溪自建别墅局改图,让我们帮忙画一下,那个图只有别墅一层的一部分估计要翻新吧。因为是在微信上设计师不在里面尺寸有些也没写出来我们要一个个去问然后我们沟通...
峰奕家装饰——艺术1951袁怡——2023.10.30
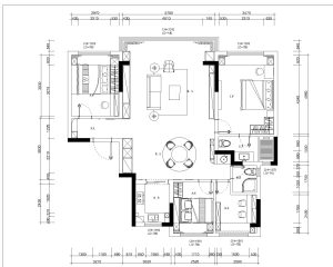
今天学姐让我们做利民花园一栋复式楼的方案。她说让我们做点难度大一点的方案,她跟我们说了些要求以后就让我们自己做了。入户门进去左边就是楼梯我就新添了一堵墙进行隔断。入户门右边是厨房还...
名帆装饰公司 艺术1951 顾闵豪 10.30
今天到公司好像事情很多的样子 上午先集体打扫了卫生 老板跟师傅去量房了 我们在干其他事 回来后 给我一个图纸让我画出来 有些尺寸不怎么精准没有 需要自己去算或者大概一下 下午跟着师傅去工地...
上海鸿境—艺术1951 杨晓芸 2023.10.30
新的一周有又开始了,上周在尾声的时候,学长学姐已经给我们布置了任务—cad平面布置图一种方案。 上午下午都在做cad图纸,因为每个公司的画图习惯都不一样,也有参考公司之前的图纸,这次比以...
峰奕家装饰-艺术1951杨静雯 2023.10.30
今天学姐给了我们一套复式楼的图让我们布置。一开始让我们自己画楼梯,楼梯的阶数和高都要考虑,但是我们没怎么画过楼梯,所以学姐把楼梯给了我们,一楼厨房有两个水管,一个放了水槽另一个还不...
红火装饰——王蕊——艺术1951 10.30
休息两天回来学习了,最近公司比较忙,老板和王哥都没空教我们。我之前布置的房型布置好了。但是总觉得怪怪的。王哥太忙了,等王哥忙完再让他看看吧。公司最近来的客户很多,下午就来了三对要做...











