久州装饰—艺术1851孟楠楠 2022.11.10

22.11.10 周四

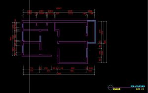
  今天给了一套新的房型,昨天刚量出来,放图过程中遗漏了一个门洞的距离,导致门洞与门洞之间不能对齐,经过仔细检查,绘制出了以下原始结构图,这是个老房子,不能敲墙,过程非常煎熬,经过师傅的样例和指导,终于成型,画图画的好烦,想上学。图片[1]-久州装饰—艺术1851孟楠楠 2022.11.10-现代学徒制-运行管理系统图片[2]-久州装饰—艺术1851孟楠楠 2022.11.10-现代学徒制-运行管理系统

© 版权声明
THE END
喜欢就支持以下吧
点赞0
分享