10.17
- 新的一周!新的一天!从放样图纸开始,有前几次的经验,所以这次放样快了很多。数据也偏差不多,第二次就放好了。对面的甲方又来了,所以师父差不多一整天都很忙,不能去打扰。于是下午就计划写写自己的练习,顺便看看这边的书籍。 之前有学到过关于公园方面的快题设计,翻翻书架瞄到了《公园设计规范》2017年版。简单阅读完毕后,了解到的有单位hm(百米)、植物配置要乔灌结合、游玩憩息场地要用高大的乔木遮荫、名词“驳岸”,以及公园功能分区一般包括:入口区、管理区、安静休息区、运动健身区、娱乐活动、主题游赏区等。还画了点平面图,不是很熟练。在这边有种缓慢生长的感觉。
![图片[1]-澄岳设计——艺术1951杨舒清2022.10.17-2022.10.20-现代学徒制-运行管理系统](https://app.art-design.top/wp-content/uploads/2022/10/t017d977c7c7db2d3dd-300x210.jpg)
驳岸
![图片[2]-澄岳设计——艺术1951杨舒清2022.10.17-2022.10.20-现代学徒制-运行管理系统](https://app.art-design.top/wp-content/uploads/2022/10/丽景嘉园-模型-300x233.jpg)
日常练习
10.18
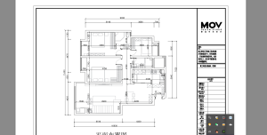
- 师父给了任务!布置周一的原始平面图,要求三卧室、两卫生间、外加一间书房。根据房型最让人焦头烂额的是书房的安置,这意味着要再腾出一间房,我并不擅长根据房型做加法,所以选择了融入,尽量不改动原来的房型,将书房的功能加在其他地方,这个房型阳台很多,于是就把书房做成开放式的安置在朝北阳台的一端。完成后参考布置图,需要改进的地方很多。师父说一方面,要将空间充分合理利用,咱布置图的左边空间并没有完全利用。另一方面,也要考虑方位,采光等一系列问题。(住宅方位)还注意到原来厕所分内厕、外厕。对于空间的合理分配,师父还是推荐我们多看设计大师的空间布置来增长见识以及自己也找找方案练手,对于积累经验是再好不过的。
![图片[3]-澄岳设计——艺术1951杨舒清2022.10.17-2022.10.20-现代学徒制-运行管理系统](https://app.art-design.top/wp-content/uploads/2022/10/原始结构图布置图-Model-300x114.jpg)
布置
10.19
- CAD里qdim这个快捷键真好用,选择线条后往下拉就能完成标注!
- 知末网用来找草图大师的素材很方便
- 如果对家装布置没有头绪,可以去设计拓者吧学习前辈们的设计思路
- 从百科全书般的师父那了解到国外建筑师——路易斯康。师父说,比起设计师,有时候也要多看看建筑师,一些建筑师的作品会比设计师更别出心裁!就像路易斯康设计的萨尔科生物学院,其特别之处在于,对称分布在中心庭院两边的十个研究塔楼,两侧皆有偏转45度的墙体,它们的每一间研究室提供了观赏大海的开阔视野。以我目前的水平还没办法完全理解萨尔科生物学院的表面,深层次就更不用说了,不过咱很乐意去学去看去理解,好故事无论听多少都不嫌多。
- 卡尔安德烈也是在聊天中了解到的一位极简主义代表人物。“我不切割材料,我切割空间。”他使用的作品原材料大多未经加工,减少人为修饰,使得与空间自然融为一体。想起之前看到的话“扯去你的虚荣,去探知绿色的世界,从中找到,你在艺术创作中的真正位置。”没有人能离开自然,满足最基本的视觉享受功能,也要通过观察自然才能培养起来。
- 傍晚,漫天嫣红,难得埋在工作中的师父也欠起身去门外看了会。我也是啊,久久挪不开目光,看着云霞拥抱大厦。设计的最高境界,便是与自然相辅相成吧。忽然有些理解卡尔安德烈了。
![图片[4]-澄岳设计——艺术1951杨舒清2022.10.17-2022.10.20-现代学徒制-运行管理系统](https://app.art-design.top/wp-content/uploads/2022/10/R-C-300x219.jpg)
萨尔科生物学院 局部
![图片[5]-澄岳设计——艺术1951杨舒清2022.10.17-2022.10.20-现代学徒制-运行管理系统](https://app.art-design.top/wp-content/uploads/2022/10/9c9e2eed033b476da4f6826d5cd37daa-289x300.jpeg)
第155号地块上的立方体 (安德列卡)
![图片[6]-澄岳设计——艺术1951杨舒清2022.10.17-2022.10.20-现代学徒制-运行管理系统](https://app.art-design.top/wp-content/uploads/2022/10/a132caf13b8543d6b9785b0bd058c944-232x300.jpg)
木锯切练习(同上)
![图片[7]-澄岳设计——艺术1951杨舒清2022.10.17-2022.10.20-现代学徒制-运行管理系统](https://app.art-design.top/wp-content/uploads/2022/10/9A5066EC544C2978C50DDCBF94D8862C-300x225.jpg)
就算倒过来也可以看
![图片[8]-澄岳设计——艺术1951杨舒清2022.10.17-2022.10.20-现代学徒制-运行管理系统](https://app.art-design.top/wp-content/uploads/2022/10/393B390CD92882BD9B3FBF18BDC27487-300x225.jpg)
云
10.20
-
- 今天在专业方面也没有什么特别的安排,所以就打算自己逛逛设计方案,下午就复习吧。考试和实习撞一块是挺麻烦的。浏览方案过程中看到了内嵌式插座,询问了师父,他表示对这个没什么经验,那就自己整理喽。
- 关于内嵌式与普通插座,首先是结构不同。
![图片[9]-澄岳设计——艺术1951杨舒清2022.10.17-2022.10.20-现代学徒制-运行管理系统](https://app.art-design.top/wp-content/uploads/2022/10/v2-abf0793be92d0668c2a93ca0035bd9dd_b-229x300.jpg)
-
- 其次是内嵌式比普通插座更方便。
![图片[10]-澄岳设计——艺术1951杨舒清2022.10.17-2022.10.20-现代学徒制-运行管理系统](https://app.art-design.top/wp-content/uploads/2022/10/v2-8db77be2e96cbb878db7fbea0f9a6ae7_b-225x300.jpg)
-
- 再次是内嵌式插座有三种样式。
![图片[11]-澄岳设计——艺术1951杨舒清2022.10.17-2022.10.20-现代学徒制-运行管理系统](https://app.art-design.top/wp-content/uploads/2022/10/v2-20d80ed7a81d94de5b425a3e8fe2bbaf_b-300x122.jpg)
-
- 去了解插座后才知道有明盒、暗盒这一说!看图!
![图片[12]-澄岳设计——艺术1951杨舒清2022.10.17-2022.10.20-现代学徒制-运行管理系统](https://app.art-design.top/wp-content/uploads/2022/10/v2-0901a57c1683d69f1d811c434634e73b_b-215x300.jpg)
-
- 更多的在这,奉上链接:什么是内嵌式插座?HJSJ-2022 – 知乎 (zhihu.com)
- 也由此发现了知乎上这个华健环境设计研究所这个作者很不错!链接:(40 封私信 / 80 条消息) 华建环境设计研究所 – 知乎 (zhihu.com)
-
- 也看了些当下挺受欢迎的装修风格,有细腻温暖,轻盈绵密的风格——奶油风,高明度、低饱和度的组合变化就成了奶油色系。链接:奶油现代特写镜头_邯郸浅灰视觉-站酷ZCOOL
![图片[13]-澄岳设计——艺术1951杨舒清2022.10.17-2022.10.20-现代学徒制-运行管理系统](https://app.art-design.top/wp-content/uploads/2022/10/01vidzorgr7yzkmzfxeybe3833-1-240x300.jpg)
-
- 或是现代轻奢风,以极简风格为基础,搭配一些精致的软装元素来凸显其质感的装修风格。在奢华基础上删繁就简,追求简单,极致,内在的一种生活方式。链接:现代轻奢-美林书院_白鹿丶-站酷ZCOOL
![图片[14]-澄岳设计——艺术1951杨舒清2022.10.17-2022.10.20-现代学徒制-运行管理系统](https://app.art-design.top/wp-content/uploads/2022/10/0135cc6006764411013e39919afbfd-240x300.jpg)
-
- 北欧风也必不可少,简洁、纯粹,一提到北欧风格,脑海中便不自觉地冒出这些与之相关的词汇。如果喜欢白墙木地板,柔和配色,实用家具那么可以试试北欧风 ≖‿≖✧链接:V E R S U S · V I S I O N 丨无印良品+北欧风_JANE______-站酷ZCOOL
![图片[15]-澄岳设计——艺术1951杨舒清2022.10.17-2022.10.20-现代学徒制-运行管理系统](https://app.art-design.top/wp-content/uploads/2022/10/01f7525c7cb86aa801203d22a7f483-300x300.jpg)
© 版权声明
文章版权归作者所有,未经允许请勿转载。
THE END
喜欢就支持以下吧








