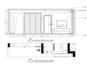
今天是实习的第四天,今天又是寒冷的一天,像往常一样吹着冷风来到了公司,昨天改好的吊顶图继续给学长检查,吊顶的工艺内容还是比较复杂的,要理解的内容还有很多,还是要多学习,通过昨天的更改,今天还是比较好的,根据网上找的风格意向图,进行改动吊顶图,昨天改好的,我今天又变化了,因为我的效果图风格基本没有复杂的边边角角,类似于极简风格的吊顶模式。中午吃完午饭,小憩了一下,下午继续完成我的施工图,把墙体拆除,建墙体,根据我做的平面布置图来进行整改,下午也做了地面铺装方案,这个相对于吊顶设计还是比较简单的,操作起来游刃有余,还是一如既往的给学长检查一下,还是被挑出了小毛病,我还是需要更加的仔细才能做的更好。![图片[1]-艺术2151孙妍 上海鸿境装饰公司 202512.04-现代学徒制-运行管理系统](https://app.art-design.top/wp-content/uploads/2025/12/ceac495f1fc5dfef0bd7a92a86d675c2-264x300.png)
![图片[2]-艺术2151孙妍 上海鸿境装饰公司 202512.04-现代学徒制-运行管理系统](https://app.art-design.top/wp-content/uploads/2025/12/92b78510b744b6ebc929ba7cba59e8cc-273x300.png)
© 版权声明
文章版权归作者所有,未经允许请勿转载。
THE END
喜欢就支持以下吧










请登录后发表评论
注册