太仓苏禾装饰-艺术2051吴佳燕-2024.6.8

图片[1]-太仓苏禾装饰-艺术2051吴佳燕-2024.6.8-现代学徒制-运行管理系统图片[2]-太仓苏禾装饰-艺术2051吴佳燕-2024.6.8-现代学徒制-运行管理系统图片[3]-太仓苏禾装饰-艺术2051吴佳燕-2024.6.8-现代学徒制-运行管理系统 图片[4]-太仓苏禾装饰-艺术2051吴佳燕-2024.6.8-现代学徒制-运行管理系统

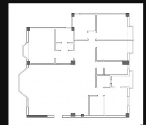
  • 今天是来公司学习的第十一天,第一张原始户型图是这次练习的图纸,原来的布置比较基础,学长希望我能有更多自己的想法。
  • 在此基础上我选择先找些参考拓展下自己的思路,学长也给了我一些思路但是让我也不要为此局限。我找了一些工装的案例分析布局,可以将思路用到家装中。
© 版权声明
THE END
喜欢就支持以下吧
点赞0
分享