艺术2151刘明坤(摩绘设计)2023.12.26

今天啊还是元气满满的一天,被我妈从床上拿扫把威胁下来的奥……

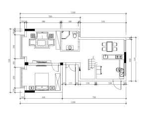
今天呢还是为昨天去工地量房的数据整理一下,按照毕哥要求在现场多拍点广角照片再用cad把平面布置图画下来,我们快速的把图出好了,第一次感觉自己独立完成一个项目平面cad的成就感,期间高度记号我们都不会,然后我自己在网上查找资料,终于找到了:按住shift键的同时按出两下%%再按P键就可以打出来。哈哈哈哈哈!!!!图片[1]-艺术2151刘明坤(摩绘设计)2023.12.26-现代学徒制-运行管理系统 图片[2]-艺术2151刘明坤(摩绘设计)2023.12.26-现代学徒制-运行管理系统 图片[3]-艺术2151刘明坤(摩绘设计)2023.12.26-现代学徒制-运行管理系统 图片[4]-艺术2151刘明坤(摩绘设计)2023.12.26-现代学徒制-运行管理系统 图片[5]-艺术2151刘明坤(摩绘设计)2023.12.26-现代学徒制-运行管理系统

© 版权声明
THE END
喜欢就支持以下吧
点赞0
分享