12.22 周五
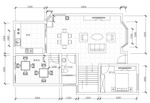
今天是实习的第五天,早上老板发现没水喝了,非常迅速的买了一箱水来。行动能力真的很强,向老板学习!上午给老板发了我们改好的CAD,然后听老板分析我们做的图的问题:(1)标注太杂乱,字体用宋体会更清晰。(2)标注数值要简洁,可以四舍五入,化繁为简(3)所有线都是一样的粗细,不好区分哪个是哪个(4)墙的颜色要设置成最深的,其次是家具,最后是地面铺装。(5)家具图库找最简单,用几何概括就行。
下午按照老板提出的问题进行改正,改完后发现打印出来的图果然清晰明了了。![图片[1]-艺术2151 王睿(摩绘设计) 12.22-现代学徒制-运行管理系统](https://app.art-design.top/wp-content/uploads/2023/12/王睿-练习27-模-333-300x212.jpg)
![图片[2]-艺术2151 王睿(摩绘设计) 12.22-现代学徒制-运行管理系统](https://app.art-design.top/wp-content/uploads/2023/12/27-最终-300x207.jpg)
![图片[3]-艺术2151 王睿(摩绘设计) 12.22-现代学徒制-运行管理系统](https://app.art-design.top/wp-content/uploads/2023/12/微信图片_20231222172919-300x225.jpg)
© 版权声明
文章版权归作者所有,未经允许请勿转载。
THE END
喜欢就支持以下吧









