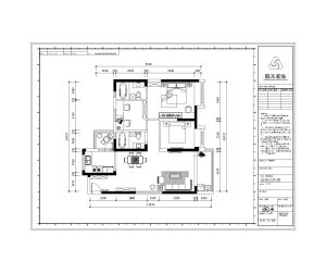
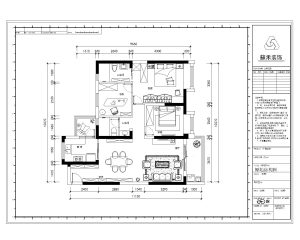
今天是实习的第三天,天气还是很冷,风很大。我和同学早早的来到公司门口等待,但是公司还是没有开门。过了一会,学姐来了,我们进去坐到位置后,学姐还没有给我们布置任务,于是我们就去问了一下学姐,学姐给我们了一个方案让我们做,学姐和我们说,这是一个婚房,小两口,没有孩子,老人偶尔来住。接着,我开始做cad,刚开始的时候,遇到了一个问题,我向学姐请教,学姐回答之后,我也明了了。之后,做完方案,我们让学姐来帮我们看看有什么不足的地方。学姐看了之后,和我说,厨房的台面太少了,没有别的位置放菜板,以及总体储物空间比较少,书桌书椅背对着门,浴室对着床头等等问题需要改正。经过学姐的指导之后,我又改出了第二版,但是还没来得及给学姐看,因为她们正忙,我打算明天一早再给她看!
![图片[3]-艺术2151丁佳颖 太仓苏禾装饰 12.21-现代学徒制-运行管理系统](https://app.art-design.top/wp-content/uploads/2023/12/微信图片_20231221165157-225x300.jpg)
© 版权声明
文章版权归作者所有,未经允许请勿转载。
THE END
喜欢就支持以下吧









