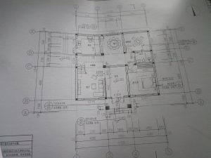
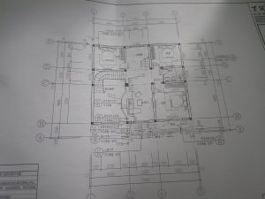
今天又做了点ppt,然后今天看到了新农村自建别墅的设计图纸,依旧是厚厚一大坨。别墅总高要达到11.7米,1楼进去是个玄关,感觉玄关那堵墙那可以做个好看的背景墙或者玄关柜,然后有个棋牌室和老人房,2楼的客厅要做挑空3楼给了一大块区域做书房兼茶室旁边是一大块露台。然后里面有个闷顶平面图,后面问了一下这个闷顶就是之前看的那个阁楼,阁楼的楼顶用的是红色屋瓦面。里面有个山墙的剖面图看着像屋顶那块我去了解了一下,山墙是指一栋建筑两端的墙体。当房屋的两侧山墙同屋面齐平或延造成的损失略高出屋面时,这种建筑样式叫作“硬山”。硬山式建筑山墙高于屋顶,成了建筑造型其最初目的是为了防火,后来逐渐发展出多种地域样式,富于美学价值。后面大多是施工的数据有点看不懂,这样一看室内设计比建筑设计简单好多。
![图片[4]-榫卯装饰-艺术1951李思韵-2023.11.21-现代学徒制-运行管理系统](https://app.art-design.top/wp-content/uploads/2023/11/IMG20231121161919-300x225.jpg)
© 版权声明
文章版权归作者所有,未经允许请勿转载。
THE END
喜欢就支持以下吧









