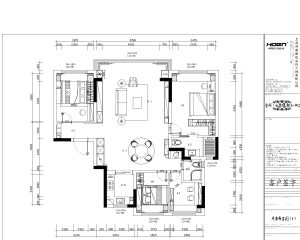
今天只有学姐在,学长不在公司。我们昨天发的平面布置图,我看到学姐上午就开始批改了,她真的很负责,我哭死。
但是她要去量房,麻烦我们看一下门,等下午回来,她还在看我们的图。等她改完,我们就知道了自己的问题。
去问问题她也会给出解决方案。她没有义务管我们可是她每次作业都看的很仔细,连线歪不歪都看得到。
她告诉我我的房子看不出太多改动,没看到我的设计,我打算第二套方案在进行一定的改动和设计。包括她给我提意见说可以在房间设计步入式衣帽间等。很有用…
![图片[2]-上海鸿境—艺术1951 杨晓芸 2023.10.31-现代学徒制-运行管理系统](https://app.art-design.top/wp-content/uploads/2023/11/048B2C83-575C-4E38-B260-86A61E25F464-300x240.jpeg)
© 版权声明
文章版权归作者所有,未经允许请勿转载。
THE END
喜欢就支持以下吧









