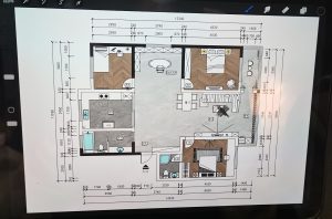
今天是实习的第二天。上午我对昨天未完成的CAD继续进行平面布置,对于家具的摆放位置犹豫不决,于是我上网查阅了关于家具摆放的风水知识,以此来帮助我接下来的工作进度。做完后我根据人体工程学的尺寸进行修改,完善方案。
下午我将自己完成的平面布置图导到酷家乐进行软装搭配。酷家乐没有3D复杂,用起来比较方便。
在学校里学习总是老师往我们的头脑里灌输知识,来到这里实习使我感触很大,学姐学长的学习氛围特别浓,无形中给我们营造了一个自己求知的欲望。
![图片[1]-苏禾装饰-艺术2051徐依婷-2023.5.24-现代学徒制-运行管理系统](https://app.art-design.top/wp-content/uploads/2023/05/8-300x134.jpg)
![图片[2]-苏禾装饰-艺术2051徐依婷-2023.5.24-现代学徒制-运行管理系统](https://app.art-design.top/wp-content/uploads/2023/05/9-300x198.jpg)
![图片[3]-苏禾装饰-艺术2051徐依婷-2023.5.24-现代学徒制-运行管理系统](https://app.art-design.top/wp-content/uploads/2023/05/8BE3C23AFA5D316F4A87998D02493DAD-300x225.jpg)
![图片[4]-苏禾装饰-艺术2051徐依婷-2023.5.24-现代学徒制-运行管理系统](https://app.art-design.top/wp-content/uploads/2023/05/7-300x158.jpg)
© 版权声明
文章版权归作者所有,未经允许请勿转载。
THE END
喜欢就支持以下吧









