首页
学徒日志
学徒总结
学徒报告
学徒掠影
学徒任务
学徒安排
学徒保障
学徒协议
写文章
登录
注册
找回密码
开启精彩搜索
热门搜索
上海摩绘
沐泽
全屋
九洲
蒋子若
陈益连
周宇
宇雯
桧木
顾陈蕾
郑轩
陈可盈
徐婷
夏文皓
桧木装饰
支晓雯
姚晴洁
林芸
包静秋
首页
学徒日志
学徒总结
学徒报告
学徒掠影
学徒任务
学徒安排
学徒保障
学徒协议
登录
注册
找回密码
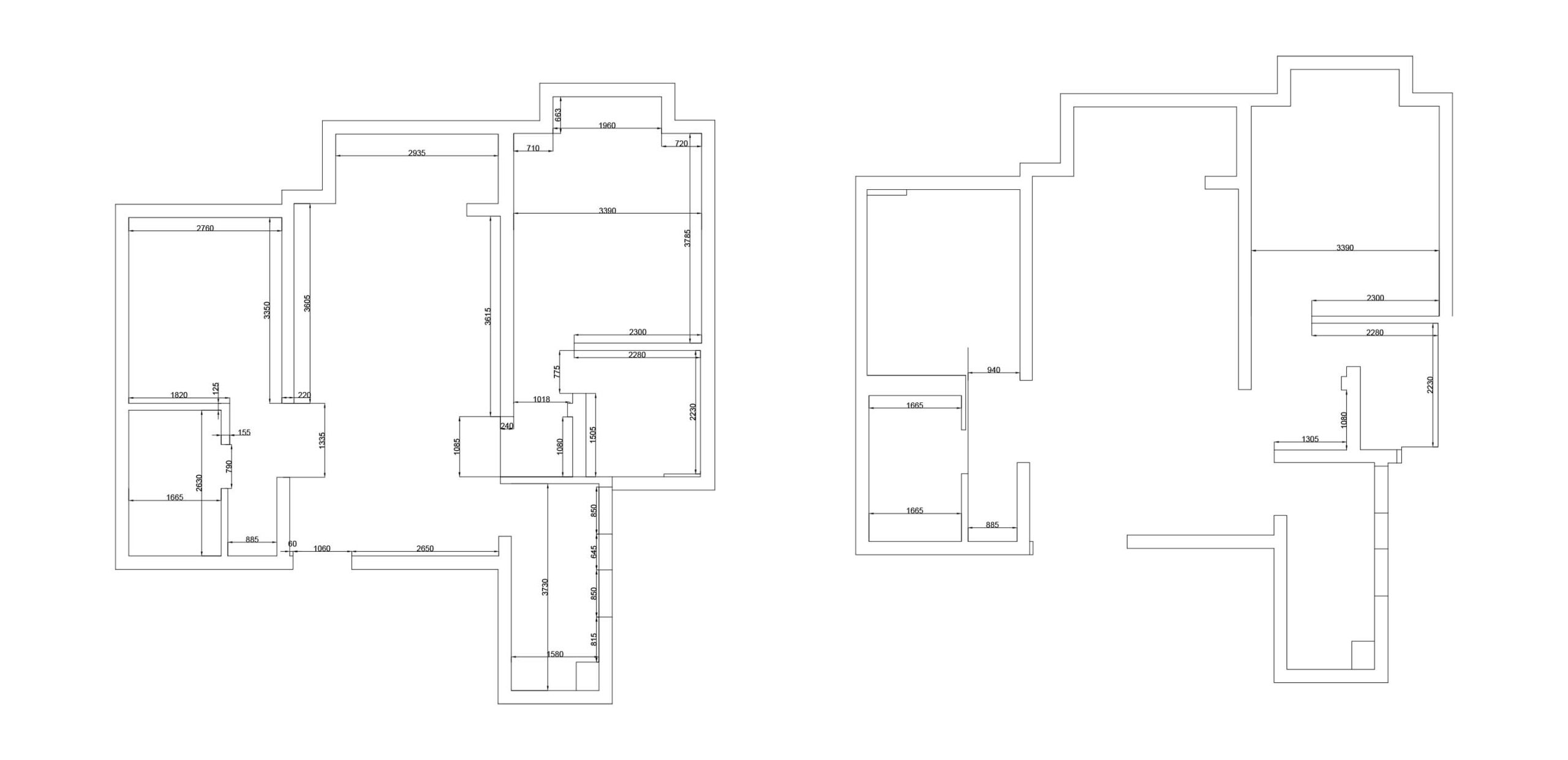
太湖世家放样-Model
上一张
下一张
登录
没有帐号?立即注册
用户名或邮箱
登录密码
记住登录
找回密码
登录
注册
已有帐号,立即登录
设置用户名
设置密码
重复密码
注册
安全验证
返回上一级
支付宝
微信支付
¥
正在生成订单,请稍候